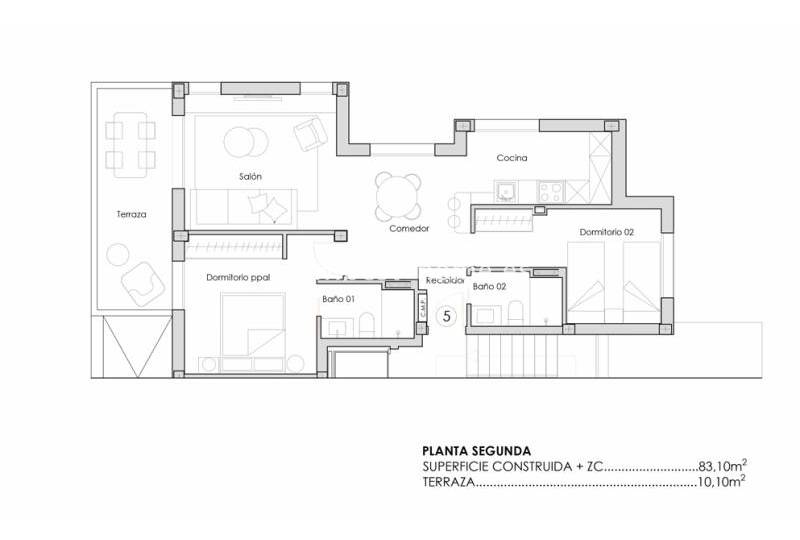
Apartament · Pierwotny Costa Calida (Murcia) · Los Alcázares

REF: BHLSRLLRT

Best-home