Piękna willa na dużej działce z prywatnym basenem i 5 sypialniami w Elche
Zapraszamy do zapoznania się z tą wyjątkową nieruchomością położoną w jednej z najbardziej poszukiwanych dzielnic Elche.
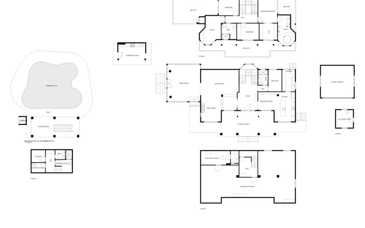
Willa znajduje się na przestronnej działce o powierzchni 4.750 m², zapewniającej prywatność i komfort. Większa część domu została kompletnie wyremontowana w 2019 roku, co gwarantuje nowoczesny standard i wysoką jakość wykończenia.
Rozkład nieruchomości
Dom składa się z dwóch kondygnacji:
Parter:
Na głównym poziomie znajduje się przestronny hol wejściowy, salon z jadalnią, nowa, w pełni odnowiona kuchnia, pralnia, jedna sypialnia, łazienka oraz przeszklony salon/weranda z pięknym widokiem na ogród i basen.
Piętro:
Na piętrze znajdują się cztery dwuosobowe sypialnie, dwie łazienki oraz trzy balkony.
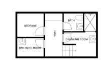
Z głównej sypialni jest również dostęp do przestronnej garderoby.
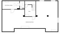
Piwnica
Duża piwnica oferuje ogromny potencjał aranżacyjny. Obecnie jest wykorzystywana jako siłownia oraz sala zabaw dla dzieci. Na tym poziomie znajduje się również pomieszczenie techniczne z instalacją elektryczną.
Strefa zewnętrzna
Nieruchomość posiada rozległe, zadbane tereny zewnętrzne:
duży, zadaszony ganek/porch zapewniający cień w upalne dni
piękny ogród z w pełni wyposażoną kuchnią zewnętrzną
prywatny basen z dodatkowym, zadaszonym pomieszczeniem pod basenem, w którym znajdują się:
dwie przebieralnie
schowek
łazienka i prysznic
Dodatkowe udogodnienia
garaż na dwa samochody z automatyczną bramą
duża, prywatna działka z wieloma możliwościami zagospodarowania
Aby uzyskać więcej informacji lub umówić się na prezentację, skontaktuj się z nami.
Informacja podana tutaj jest orientacyjna i nie stanowi części żadnej umowy. Oferta może zostać zmieniona lub wycofana bez uprzedniego powiadomienia. Ceny nie obejmują kosztów zakupu
Adres: Avenida Asunción nº7, Centro Comercial Filton Local 40, 03186 Torrevieja (Los Balcones)
Otwarte: Poniedziałek - Piątek od 10:00 do 18:00. Sobota od 10:00 do 14:00
© 2026 Best-home Houses & Apartmens ● Nota prawna ● Prywatność ● Cookies ● Mapa strony ● Projekt: Mediaelx
Pliki cookie pozwalają na personalizację twojego doświadczenia na naszej stronie, informują nas, które części naszych witryn odwiedzają ludzie, pomagają nam mierzyć skuteczność reklam i wyszukiwań internetowych oraz dostarczają nam wglądu w zachowanie użytkownika, abyśmy mogli ulepszać nasze komunikaty i produkty. Więcej informacji
Dziękujemy za kontakt z naszym biurem
We have received your request regarding the property reference: BH433368. One of our agents will contact you as soon as possible.
Dziękujemy za kontakt z naszym biurem
Otrzymaliśmy Twoją prośbę o wysłanie informacji w przypadku spadku ceny tej nieruchomości: BH433368
Tymczasem prosimy zobaczyć tą sekcję z podobnymi nieruchomościami, które być może Cię zainteresują: